168飞艇开奖官网开奖记录查询结果

新型秸秆纤维混合搅拌机家用小型<技术文献>

2019-03-04

新型秸秆纤维混合搅拌机家用小型技术文献,168飞艇开奖官网开奖记录查询结果专题讲解家用小型搅拌机的另外一种形式形态使用方法与用途。

新型秸秆纤维混合搅拌机家用小型技术文献,168飞艇开奖官网开奖记录查询结果专题讲解家用小型搅拌机的另外一种形式形态小型搅拌机使用方法与用途。


秸秆纤维混合搅拌机家用小型背景技术:

根据1995年中国公布的统计资料,粮食播种面积16.5亿亩,粮食总产量4.67亿吨,按粒秆比1∶1.2估算,再加上其他作物秸秆,全国年生产秸秆近6亿吨,但在秸秆的利用上由于从前农业生产水平低、产量低,秸秆除少量用于垫圈、喂养牲畜,部分用于堆沤肥外,大部分都作燃料烧掉了。

而燃烧秸秆会引发交通事故,影响道路交通和航空安全。焚烧秸秆形成的烟雾,造成空气能见度下降,可见范围降低,直接影响民航、铁路、高速公路的正常运营,容易引发交通事故,影响人身安全。还会引发火灾。秸秆焚烧,极易引燃周围的易燃物,导致“火烧连营”,一旦引发麦田大火,往往很难控制,造成经济损失。尤其是在山林附近,后果更是不堪设想。再有焚烧秸秆破坏土壤结构,造成农田质量下降。

秸秆焚烧也入地三分,地表中的微生物被烧死,腐殖质、有机质被矿化,田间焚烧秸秆破坏了这套生物系统的平衡,改变了土壤的物理性状,加重了土壤板结,破坏了地力,加剧了干旱,农作物的生长因而受到影响。

后还会产生大量有毒有害物质,威胁人与其他生物体的健康。秸秆中含有大量的有机质,氮磷钾和微量元素,据张夫道等人的统计,豆科作物秸秆含氮较多,禾本科作物秸秆含钾较丰富,作物秸秆提供的养分约占中国有机肥总养分的13%~19%,是农业生产重要的有机肥源。鉴于造成这些危害以及秸秆所含有的养分所以在秸秆的回收利用上有很多种方法:例如废旧聚乙烯和植物秸秆粉再生板材或制成高强轻质稻壳灰保温砖或户用秸秆气化炉燃气灶或秸秆高效全价生物饲料或秸秆立体栽培草腐类食用菌高产新技术等,在这些利用的方法之前要提前把秸秆粉碎。因此移动式小型搅拌机在于能很方便的把秸秆粉碎再次利用。


秸秆纤维混合搅拌机家用小型技术实现要素:

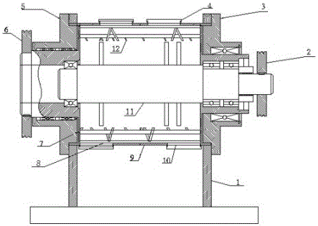
一种新型秸秆纤维混合混合搅拌机家用小型,这种立式搅拌机小型包括机架(1)、小带轮(2)、右端盖(3)、进料口(4)、左端盖(5)、大带轮(6)、螺旋套(7)、刮板(8)、料斗(9)、出料口(10)、分散轴(11)、铡刀(12)。其中新型秸秆纤维混合搅拌机的进料口(4)和出料口(10)分别位于机架(1)的上部和下部,料斗(9)在机架(1)的中部,左端盖(5)和右端盖(3)固定在机架(1)的左右两边,小带轮(2)固定在料斗(9)中部的分散轴(11)的左侧,大带轮(6)固定在分散轴(11)的右侧,铡刀(12)固定在螺旋套(7)上,螺旋套(7)通过轴承和分散轴连接,刮板(8)位于出料口(10)的上面。新型秸秆纤维混合搅拌机左端盖(5)和右端盖(3)通过螺栓固定在机架(1)的左右两侧。

一种新型秸秆纤维混合搅拌机家用小型通过把秸秆、纤维原料搅碎后可以综合利用制成再生板或用以他用。秸秆纤维混合搅拌机结构简单、易于操作、运行稳定、需要很少的操作人员大大的减少了人工成本、原料搅碎均匀、机器造价成本低适合农村需求,不仅为农民增加额外的收入还有利于保护环境。不足的有可能是小型搅拌机规格型号较为单一,小搅拌机并不存在大量型号划分区别。


秸秆纤维混合搅拌机家用小型附图说明

新型秸秆纤维混合搅拌机家用小型<技术文献>--168飞艇开奖官网开奖记录查询结果--小型搅拌机|石材夹具|液压堆高车|手动叉车

图1为一种新型秸秆纤维混合搅拌机的结构示意图;

图1中, 1-机架,2-小带轮,3-右端盖,4-进料口,5-左端盖,6-大带轮,7-螺旋套,8-刮板,9-料斗,10-出料口,11-分散轴,12铡刀


秸秆纤维混合搅拌机家用小型具体实施方式

一种新型秸秆纤维混合混合搅拌机家用小型,包括机架(1)、小带轮(2)、右端盖(3)、进料口(4)、左端盖(5)、大带轮(6)、螺旋套(7)、刮板(8)、料斗(9)、出料口(10)、分散轴(11)、铡刀(12)。原料从机架(1)上面的进料口(4)进入料斗(9),由大带轮(6)和小带轮(2)带动固定在螺旋套(7)上的铡刀(12),把原料粉碎。分散轴(11)跟随螺旋套(7)、带轮一起转动分散在料斗(9)的原料以便于粉碎均匀。粉碎结束后打开位于机架下方的出料口(10)通过刮板(8)运动把粉碎后的原料运出。


通过以上文章阅读参照附图详细描述,相信您对220V搅拌机家用小型其特征、使用、结构了解更加透彻,了解搅拌机家用小型价格、图片、使用视频可联系专业销售人员了解更多。

扫描以下二维码添加微信获取更多厂家时效信息!

联系电话:0312-6770968;13933276606 崔经理 

赶快来获取搅拌机家用小型生产厂家一手信息,拒绝中间商,给你批发价格!

168飞艇开奖官网开奖记录查询结果二维码

东圣小型搅拌机

东圣厂家生产多种用途、多种规格型号的小型搅拌机。搅拌水泥砂浆的滚筒式搅拌机,搅拌饲料的饲料搅拌机,搅拌食品的不锈钢搅拌机,清洗药材或者其他物料的清洗搅拌机,对沙子或其他材料进行清洗的筛洗机。

168飞艇开奖官网开奖记录查询结果